J’accompagne les entreprises d’électricité dans la production complète de leurs dossiers d’exécution. Mon expertise garantit l’optimisation des installations, un appui technique constant et la conformité totale jusqu’à la réception.

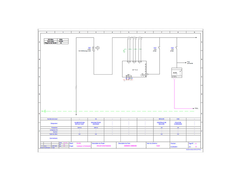
Élaboration des études d’exécution électriques comprenant les plans EXE, schémas d’armoires, synoptiques, bilans de puissance et notes de calcul, pour la réalisation d’un établissement recevant du public.
Élaboration des études d’exécution électriques comprenant les plans EXE, schémas d’armoires, synoptiques, bilans de puissance et notes de calcul, pour la réalisation d’un établissement recevant du public.


Élaboration des études d’exécution électriques comprenant les plans EXE, schémas d’armoires, synoptiques, bilans de puissance et notes de calcul, pour la réalisation d’un établissement recevant du public.
Élaboration des études d’exécution électriques comprenant les plans EXE, schémas d’armoires, synoptiques, bilans de puissance et notes de calcul, pour la réalisation d’un établissement recevant du public.


Élaboration des études d’exécution électriques comprenant les plans EXE, schémas d’armoires, synoptiques, bilans de puissance et notes de calcul, pour la réalisation d’un établissement recevant du public.
Proximité & Réactivité
Vous avez un projet en courant fort ou courant faible ? Je vous réponds sous 48h.
8 rue de l’Est
92100 Boulogne-Billancourt
15 avenue de Grenoble
38180 Seyssins
Basé sur une solide expérience en ingénierie électrique HT/BT, mon bureau d’études accompagne les installateurs électriciens et les entreprises générales dans la réussite de leurs projets tertiaires, industriels et résidentiels haut de gamme. Faire appel à un BET d’exécution externe vous apporte de la flexibilité, tout en garantissant la qualité technique et la conformité des livrables EXE.
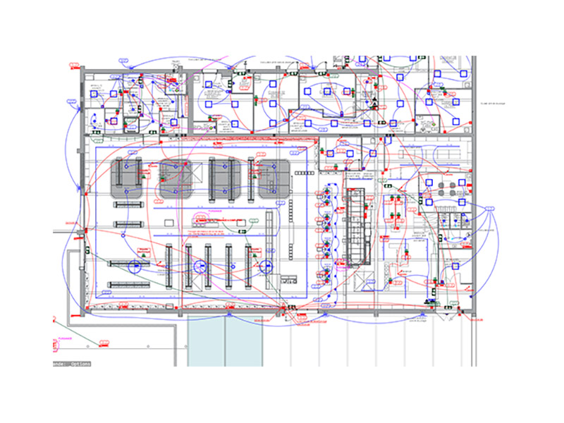
Spécialiste des logiciels de référence (AutoCAD, Caneco BT, Dialux Evo, Revit, See Electrical), j’interviens sur l’ensemble des prestations EXE : plans d’exécution CFO/CFA, notes de calcul, bilans de puissance, synoptiques, schémas unifilaires, réservations et cheminements, jusqu’aux plans de récolement (DOE). Mon approche vise une mise en œuvre fiable et optimisée, en limitant les aléas de chantier, les erreurs de pose et les surcoûts liés aux réservations mal anticipées.
Que ce soit pour une étude Smart Building (KNX, DALI-2, GTB) ou pour la mise en conformité de systèmes SSI, chaque dossier est réalisé avec une précision d’exécution, conforme aux exigences des bureaux de contrôle et aux normes en vigueur.