Spécialiste en ingénierie, je réalise chaque plan d’exécution électrique et dossier graphique complet sous AutoCAD et Revit (BIM). De la phase DCE à l’exécution, je garantis la précision des implantations, la gestion des réservations et la parfaite synthèse technique de vos projets.

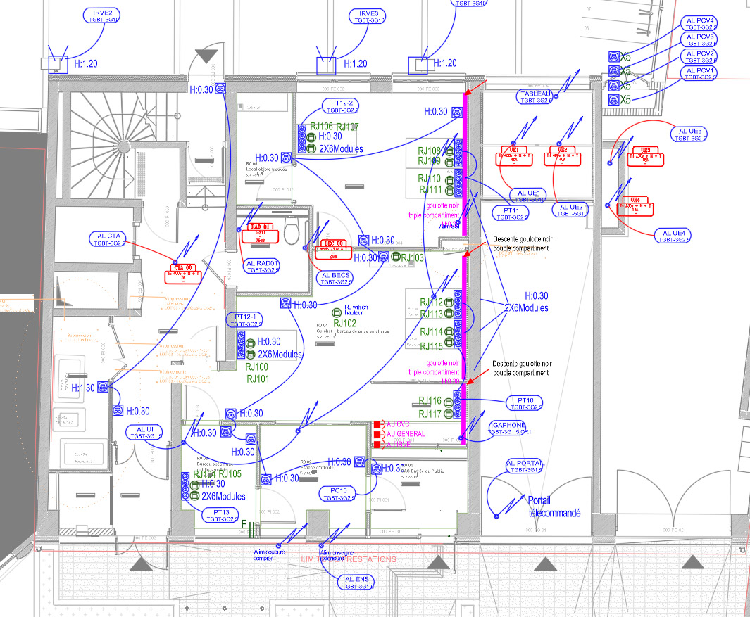
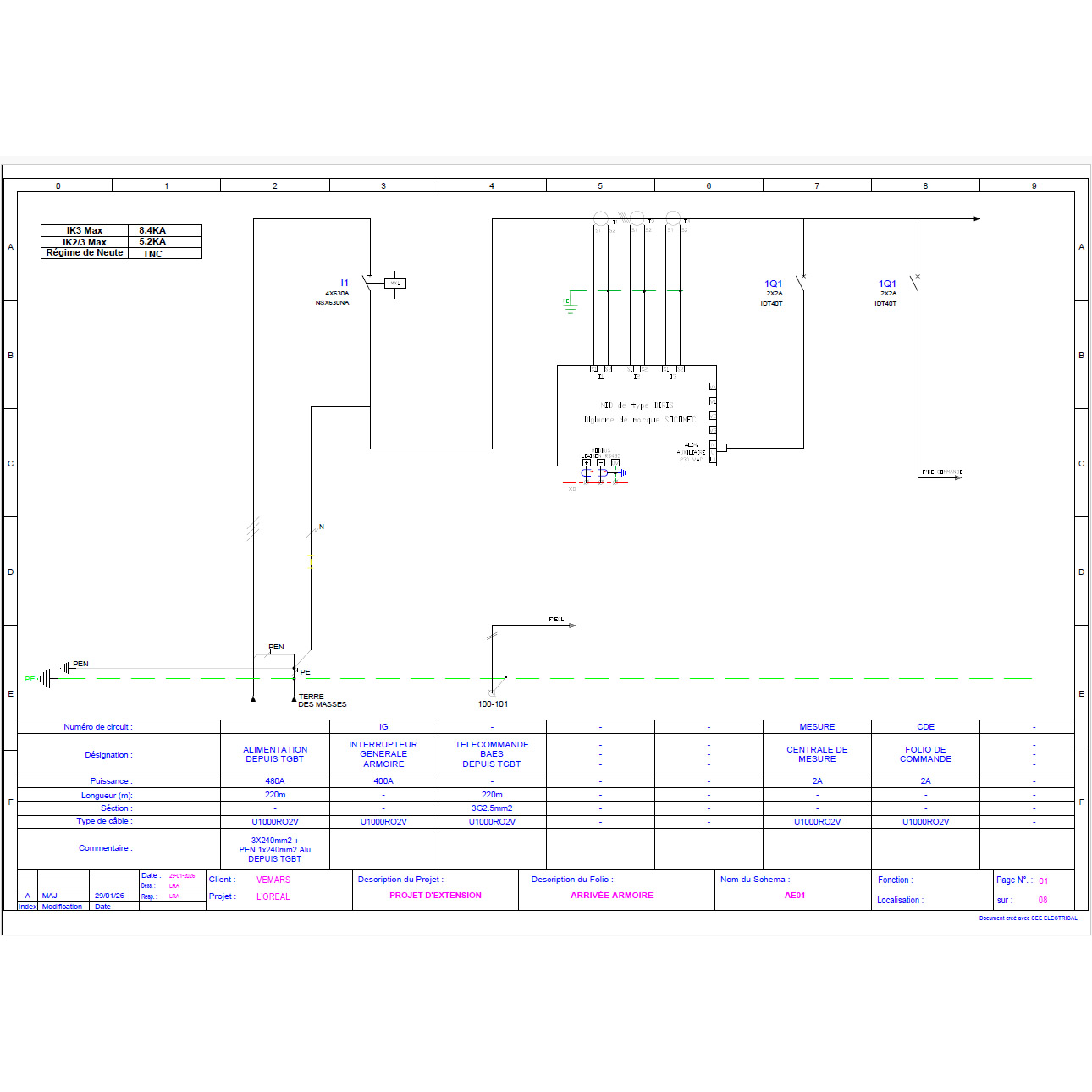
Élaboration des études d’exécution électriques comprenant les plans EXE, schémas d’armoires, synoptiques, bilans de puissance et notes de calcul, pour la réalisation d’un établissement recevant du public.
Élaboration des études d’exécution électriques comprenant les plans EXE, schémas d’armoires, synoptiques, bilans de puissance et notes de calcul, pour la réalisation d’un établissement recevant du public.


Élaboration des études d’exécution électriques comprenant les plans EXE, schémas d’armoires, synoptiques, bilans de puissance et notes de calcul, pour la réalisation d’un établissement recevant du public.
Élaboration des études d’exécution électriques comprenant les plans EXE, schémas d’armoires, synoptiques, bilans de puissance et notes de calcul, pour la réalisation d’un établissement recevant du public.


Élaboration des études d’exécution électriques comprenant les plans EXE, schémas d’armoires, synoptiques, bilans de puissance et notes de calcul, pour la réalisation d’un établissement recevant du public.
Vous avez un projet en courant fort ou courant faible ? Je vous réponds sous 48h.
8 rue de l’Est
92100 Boulogne-Billancourt
15 avenue de Grenoble
38180 Seyssins
En tant que bureau d’études spécialisé, je commence par définir les besoins du client pour transformer les concepts de conception en réalité technique. Que ce soit pour un plan de logement individuel ou des projets complexes en tertiaire, j’assure la production de documents conformes à la norme NFC 15-100.
Je réalise chaque plan d’éclairage détaillé incluant l’implantation précise des luminaires et le calpinage des appareillages. Mes livrables techniques intègrent les calculs de section de câble, le repérage par étiquette des circuits et les plans d’incorporation (dalles et voiles) pour une pose sans erreur sur le chantier.
L’expertise de Rastello Ingénierie réside dans la création de plans BIM sous Revit. Je réalise votre plan de synthèse en coordonnant mes réseaux électriques avec les lots CVC (Chauffage, Ventilation, Climatisation) et plomberie. Cette synthèse technique permet de détecter les clashs en amont et de produire un plan de réservation rigoureux pour le gros œuvre.
Basé entre Paris et Grenoble, j’interviens sur toute la France pour sécuriser l’exécution de vos chantiers. De la synthèse avec les lots techniques à la livraison des plans de recollement, je garantis une fluidité totale entre l’ingénierie et les équipes de terrain.